Мы используем куки-файлы. Соглашение об использовании

Продается 2-комн. квартира, 50 м²

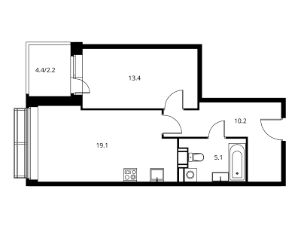
Общая площадь50 м²
Жилая площадь13,4 м²
Площадь кухни19,1 м²
Этаж15 из 17
Год сдачи2023
ДомСдан
ОтделкаБез отделки
Объявление снято с публикации, поищите ещё что-нибудь

О квартире

Тип жилья

Новостройка

Общая площадь

50 м²

Жилая площадь

13,4 м²

Площадь кухни

19,1 м²

Высота потолков

2,76 м

Санузел

1 совмещенный

Балкон/лоджия

1 лоджия

О доме

Количество лифтов

2 пассажирских, 1 грузовой

Тип дома

Монолитный

10 134 190 ₽
Цена за метр
202 684 ₽/м²
Условия сделки
свободная продажа
Агентство недвижимости
R-invest