


170 000 ₽/м²
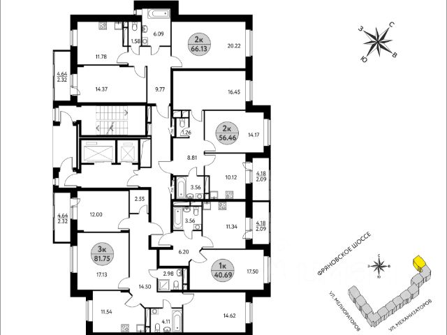
Просторная, светлая семейная квартира в жилом комплексе бизнес-класса RIVER HOUSE Щёлково! Семейная ипотека от 3.5%. Беспроцентная рассрочка. Индивидуальные дисконтные предложения. Дом сдан. Оформление в собственность. Ключи сразу после заключения договора купли-продажи. RIVER HOUSE Щёлково это изысканный жилой проект полноценного бизнес-класса с фокусом на качественное семейное проживание в самом центре города на набережной реки Клязьма. - Оригинальная архитектура, увеличенная площадь остекления, эксклюзивная вечерняя подсветка фасада. - Просторные семейные квартиры с высокими потолками 3.3 м в вариантах черновой, предчистовой и чистовой отделки. - Роскошные трехуровневые пентхаусы с открытыми террасами на кровле. - Лаунж-зона на кровле, где можно устроить уютный вечер с друзьями, отдохнуть и полюбоваться панорамными видами на город. - Вся необходимая инфраструктура и сервисы на первых двух этажах: детский сад, супермаркет, институт красоты, медицинский центр, стоматология, ПВЗ и многое другое. - В каждом подъезде 4 лифта один со спуском в паркинг, лобби с авторским дизайном, консьерж-сервисом и мягкой зоной ожидания. - Круглосуточная охрана, видеонаблюдение, бесключевая система доступа. - Двухуровневый подземный паркинг на 540 машино-мест и 260 кладовых. - Закрытый двор-парк без машин с ландшафтным дизайном, детскими и спортивными площадками, летним амфитеатром и собственным спуском к набережной. - Шаговая доступность ко всей инфраструктуре центра города: школы, детские сады, гимназии, кафе и рестораны, кинотеатр, перинатальный центр. - Три благоустроенных парка, в один из которых - Солнечные часы - можно спуститься со двора дома. RIVER HOUSE Щёлково это дом-впечатление и особый статус, которые останутся вашим детям и станут частью фамильной истории.































































































