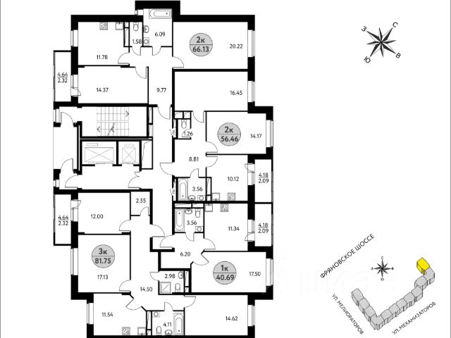
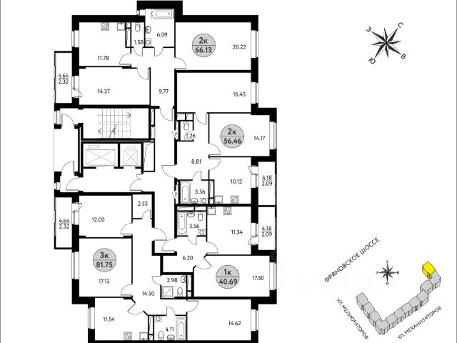
Продаётся 2-комнатная квартира в строящемся доме (Корпус 4), срок сдачи: IV-кв. 2026, общей площадью 60.9 кв.м., на 16 этаже. Расположение, транспортная доступность
ЖК строится в городе Щелково, недалеко от парков и зеленых зон. Расстояние до МКАД составляет всего 20 км - его можно преодолеть за полчаса по Щелковскому шоссе или по улице Горького и Ярославскому шоссе. До центра города Щелково от ЖК всего три километра, в восьми километрах находится г. Королев. Расположение новостройки удобно тем, что до нее можно быстро доехать разными способами, объехав дороги с затрудненным движением. В пяти минутах от комплекса проходит Пролетарская улица, по которой можно на общественном транспорте добраться до Щелковского шоссе. Остановка автобусов находится в двух минутах ходьбы от домов. Железнодорожная станция "Щелково" находится в километре от новостройки, дорога на электричке до Ярославского вокзала занимает около часа. Станция метро "Щелковская" расположена в 45 минутах езды на автобусе или маршрутке. В районе благоприятная экологическая обстановка, в нем есть несколько скверов и парков, в шаговой доступности от ЖК протекает ручей Поныри, немногим дальше - река Клязьма.
Инфраструктура
Инфраструктура района предлагает жителям большой выбор магазинов, ресторанов, предприятий сервиса, спортивных объектов. Непосредственно на территории комплекса расположены: художественная школа, продуктовый магазин и помещения, отведенные под офисы. Входы в нежилые помещения спроектированы отдельно. Рядом с ЖК расположена аптека, больница, магазины продуктов, салон красоты, парикмахерская, прачечная, ветеринарная клиника. В пяти минутах находится спортивный комплекс с бассейном и игровыми площадками, Ледовая арена имени В.А. Третьяка и детский оздоровительный плавательный центр. В районе расположены несколько церквей и храмов. Недостатка в магазинах здесь нет - у жителей района есть большой выбор супермаркетов, неподалеку есть круглосуточный продуктовый магазин.
Надежность застройщика
ГК Веста начала работать на рынке строительства в 1990 году, сейчас это объединение нескольких организаций, специализирующихся в разных отраслях строительного рынка. Помимо создания жилых комплексов, компания работает над проектами административно-технических сооружений и в области реализации инженерной инфраструктуры. Организация ведет полный цикл работ - от оценки проекта до продажи помещений. В числе ее партнеров есть крупные производственные компании. Застройщик работает с крупными и надежными банками, такими, как Сбербанк, ВТБ24, Россельхозбанк и Транскапитал банк.
Архитектура
ЖК представляет собой три одноподъездных монолитно-кирпичных дома высотой в 17 этажей. Первая башня уже сдана и в ней начата продажа квартир. Следующая очередь готовится к сдаче. Дома относятся к жилью комфорт-класса. В комплексе продаются 1-, 2- и трехкомнатные квартиры площадью от 45 до 91 кв. м и трехметровыми потолками. Квартиры продаются с частичной отделкой, в них выполнена, разводка электрики до элект